

| 建物名 | オブリージュ富士プレミアレジデンス | 価格 | 4,880万円 |
|---|---|---|---|
| 所在地 | 静岡県富士市水戸島18-6 | 交通 | 東海道本線 富士駅 徒歩5分 |
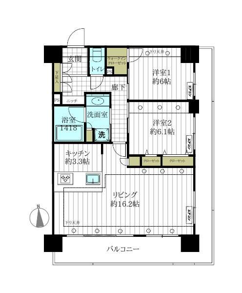
| 専有面積 | 壁芯73.26㎡ | 間取り(内訳) | 2LDK |
| 管理費 | 9,900円/月 | 修繕積立金 | 11,000円/月 |
| 駐車場 | 有 6,000円/月 | バルコニー面積 | 27.56㎡ |
| 建物構造・規模 | 鉄筋コンクリート造13階建て | 所在階 | 9階部分 |
| 築年月 | 2022年2月 | 総戸数 | 87戸 |
| 土地権利 | 所有権 | 用途地域 | 商業地域 |
| 管理形態 | 全部委託 | 管理会社 | 日本ハウズイング(株) |
| 現況 | 居住中 | 引渡 | 相談 |
| 取引態様 | 専任媒介 | 情報公開日 | |
| 設備 | オートバス 追焚機能 浴室暖房 浴室乾燥機 温水洗浄便座 シャワー付洗面化粧台 3口以上コンロ オープンキッチン 収納スペース クローゼット ウォークインクローゼット 間接照明 人感センサー付照明 ダウンライト 室内洗濯機置場 給湯 省エネ給湯器 都市ガス 複層ガラス 全居室フローリング クッションフロア エアコン2台以上 全居室エアコン CS BS端子 MMコンセント インターネット対応 光ファイバー ダブルロックドア モニタ付オートロック モニタ付インターホン ディンプルキー 防犯カメラ 火災警報器(報知機) 24時間セキュリティー ワイドバルコニー エレベーター 宅配BOX | ||
| その他 | 24時間換気システム 二重床 隣接建物距離2m以上 前面棟無 閑静な住宅街 設計住宅性能評価書 建設住宅性能評価書 修繕・点検の記録 | ||
静岡県富士市水戸島18-6
| 所在地 | 〒410-0048 静岡県沼津市新宿町9-6 佐藤ビル2F | ||
|---|---|---|---|
| 電話番号(代表) | 055-929-0207 | FAX番号 | 055-929-0208 |
| 営業時間 | 9:00〜19:00 | 定休日 | 毎週水曜 |